House Under The Hill

Keseimbangan geometri, kelembutan alam, pemanfaatan kontur fungsional

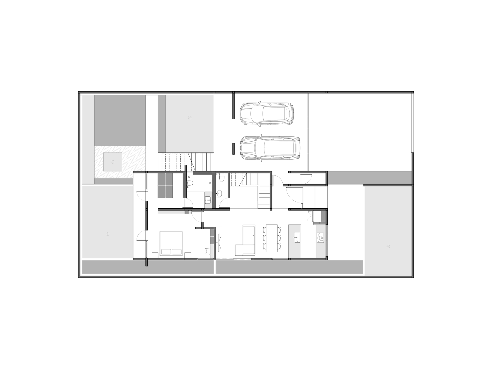
House Under The Hill dirancang sebagai sebuah rumah tinggal kontemporer yang merespons konteks tapak berkontur, dan kebutuhan privasi. Dari tampilan awal, bangunan tidak menampilkan diri secara ekspresif atau berlebihan, melainkan hadir dengan bahasa arsitektur yang tenang, solid, dan terkendali. Massa bangunan tampak seperti disusun secara presisi, membentuk komposisi geometris yang tegas namun tetap hangat melalui pemilihan material dan detail yang subtil.

Fasad depan dengan atap dengan overstek lebar menjadi elemen penting dalam komposisi bangunan, memperlihatkan pendekatan desain yang berorientasi pada privasi dan perlindungan. Bukaan dibuat selektif dan terkontrol, menciptakan kesan tertutup dari luar namun menyimpan ruang yang kaya di dalamnya. Pendekatan ini menegaskan karakter rumah sebagai sebuah “retreat” personal bagi penghuninya. Atap ini juga membingkai massa bangunan dengan garis horizontal yang kuat.

Jelajahi Karya Kami

Punten Coffee Shop

Lokali Diner Cafe

House by The Garden