Lokali Diner Cafe

Filosofi arsitektur 'raw yet refined'

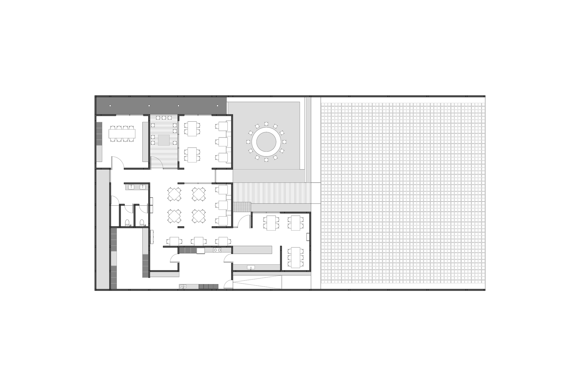
Lokali adalah sebuah diner dan cafe kontemporer yang mengusung filosofi desain arsitektur raw yet refined, memadukan estetika ekspos material dengan pengalaman ruang yang hangat, terbuka, dan mengundang. Menggabungkan kesederhanaan brutal dari beton ekspos dengan kelembutan alami kayu, dalam sebuah komposisi yang menyajikan pengalaman multisensorial bagi para pengunjung. Terletak di lingkungan urban yang cukup padat, bangunan ini dirancang untuk menjadi oasis modern yang menyuguhkan suasana natural, namun tetap berkarakter.

Didesain bukan hanya sebagai sebuah restoran atau kafe, Lokali adalah ruang interaksi sosial yang menyatu dengan lingkungan, mendorong keterhubungan antara manusia, ruang, dan alam. Sirkulasi di Lokali dirancang dengan konsep sequential discovery, pengunjung tidak langsung melihat keseluruhan ruang, tetapi diajak menyusuri jalur yang mengungkap ruang demi ruang secara bertahap. Ini menciptakan rasa penasaran dan ritme saat bergerak dari satu zona ke zona lain.

Jelajahi Karya Kami

Ula-Lia House

Hidden-Hill House

The Box Interspace