Rough Concrete Bevel House

Menyimpan ruang penuh cahaya, kehangatan, dan intervensi lanskap

Proyek hunian ini dirancang sebagai interpretasi arsitektur tropis kontemporer yang menekankan keseimbangan antara privasi, keterbukaan, dan kehangatan material alami. Dari tampak depan, rumah ini menampilkan komposisi massa yang sederhana namun tegas, dengan garis horizontal yang kuat dan bidang bidang geometris yang bersih. Fasadnya tidak berusaha tampil mencolok, melainkan menghadirkan ketenangan visual melalui permainan tekstur, proporsi, dan lanskap yang menyatu.

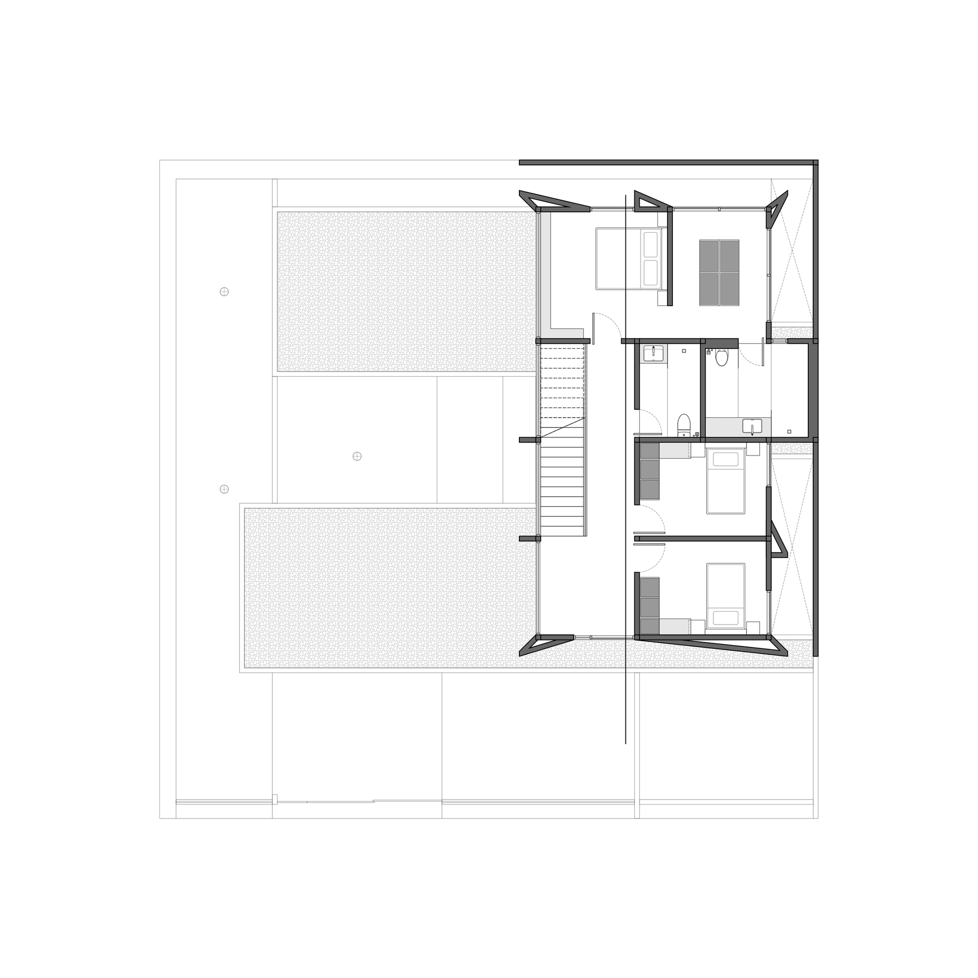
Massa bangunan dua lantai disusun dengan pendekatan yang solid di bagian luar dan lebih terbuka ke dalam. Bukaan pada lantai atas dibuat selektif, menghadirkan jendela vertikal yang ramping dengan framing yang tegas. Komposisi ini menciptakan ritme visual sekaligus menjaga privasi penghuni dari pandangan jalan.

Jelajahi Karya Kami

Lokali Diner Cafe

House by The Garden