Hidden-Hill House

Perpaduan sederhana antara konteks alam dan estetika modern

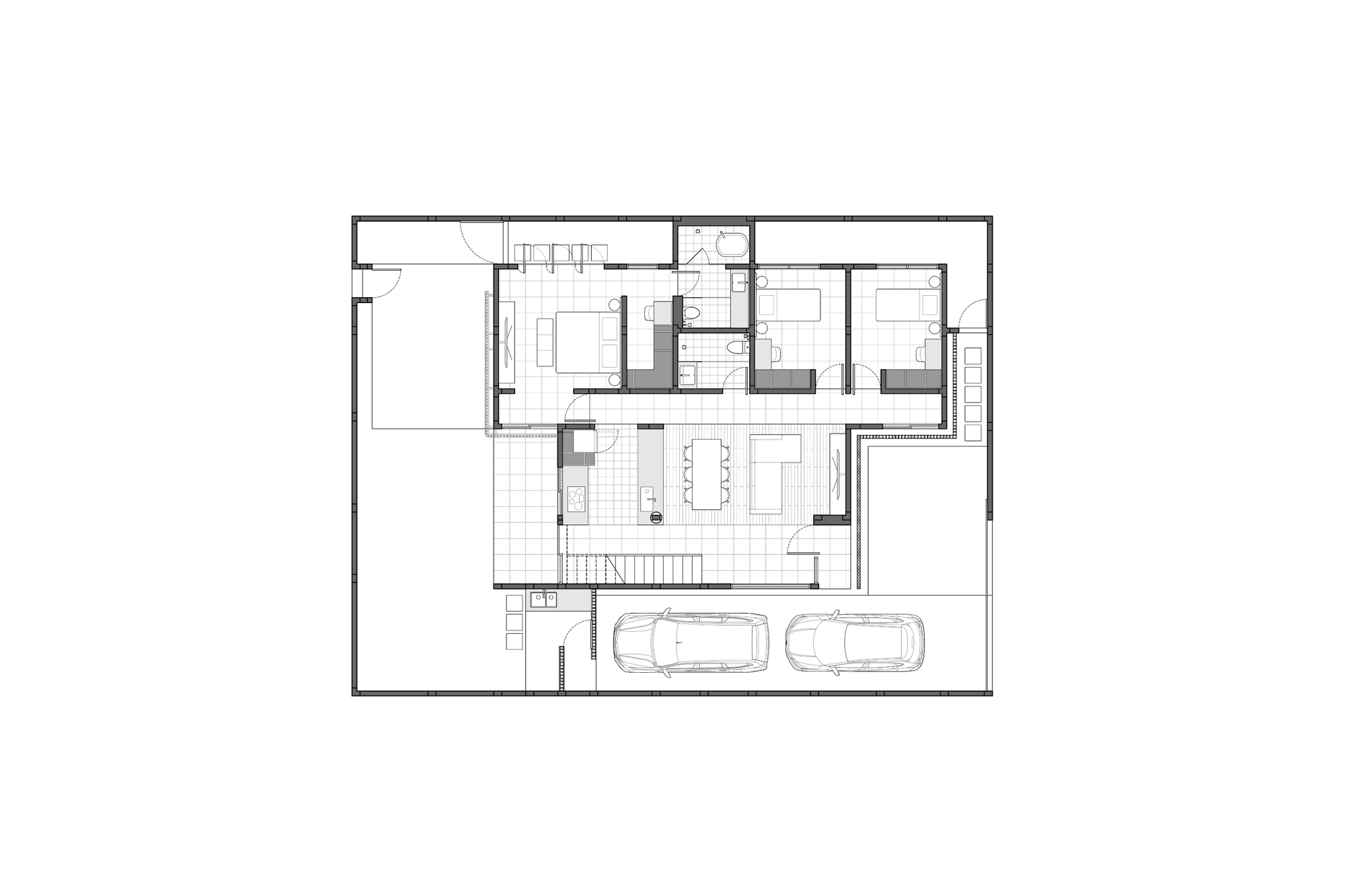
Hidden-Hill House merupakan proyek residensial yang dirancang oleh Humaloji Design Studio, terletak di sebuah kawasan perbukitan dengan akses yang relatif tersembunyi namun memiliki elevasi yang cukup tinggi. Keunggulan tapak inilah yang menjadi landasan utama pendekatan desain secara menyeluruh. Rumah ini tidak sekadar berfungsi sebagai tempat tinggal, melainkan sebagai ruang yang merespon secara peka terhadap karakteristik geografis, iklim tropis, dan kebutuhan hidup masa kini.

Pendekatan desainnya mengutamakan prinsip site-responsive architecture, pencahayaan alami, penghawaan silang, serta estetika material yang jujur dan tidak berlebihan. Lokasi rumah yang berada di lereng perbukitan memberikan tantangan sekaligus peluang. Salah satu pertimbangan utama dalam merancang Hidden-Hill House adalah orientasi matahari yang langsung berdampak pada kenyamanan termal dan pencahayaan alami di dalam bangunan.

Salah satu pertimbangan paling penting dalam perancangan Hidden-Hill House adalah arah matahari dan bagaimana ia mempengaruhi kenyamanan termal serta pencahayaan alami di dalam bangunan. Dengan menempatkan kamar tidur di sisi timur, pengguna rumah dapat menikmati paparan sinar matahari pagi yang lembut dan menyehatkan, sekaligus menghindari panas berlebih di sore hari.

Jelajahi Karya Kami

BKS Office

Omah Gebyok

Punten Coffee Shop