Tranquil and Shaded House

Ketenangan ruang dan kesejukan alami

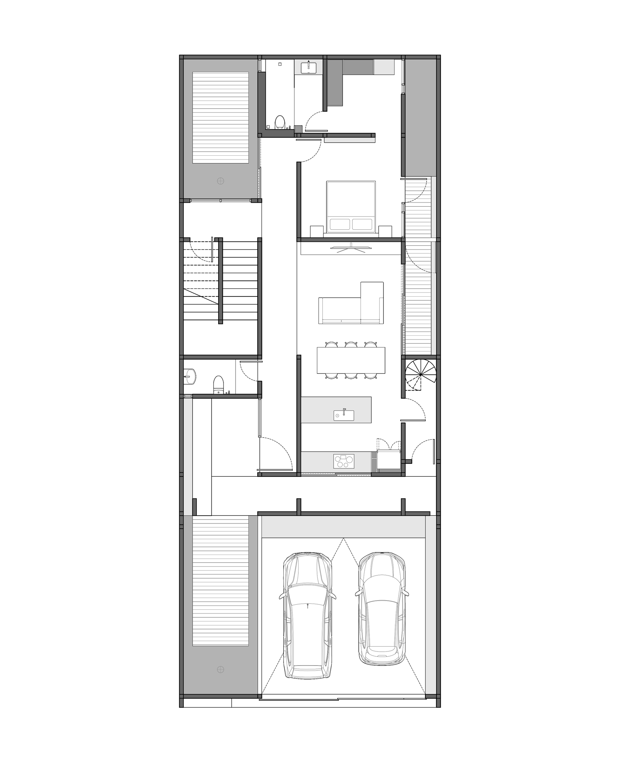
Tranquil and Shaded House merupakan perwujudan gagasan hunian tropis yang menempatkan keteduhan, privasi, dan ketenangan sebagai fondasi utama perancangan. Rumah ini dirancang bukan untuk tampil dominan di lingkungan sekitarnya, melainkan untuk menciptakan dunia yang lebih hening di balik batas tapaknya. Dengan pendekatan arsitektur yang bersih dan terukur, proyek ini menampilkan komposisi massa sederhana yang diperkaya oleh permainan cahaya, bayangan, tekstur, dan vegetasi.

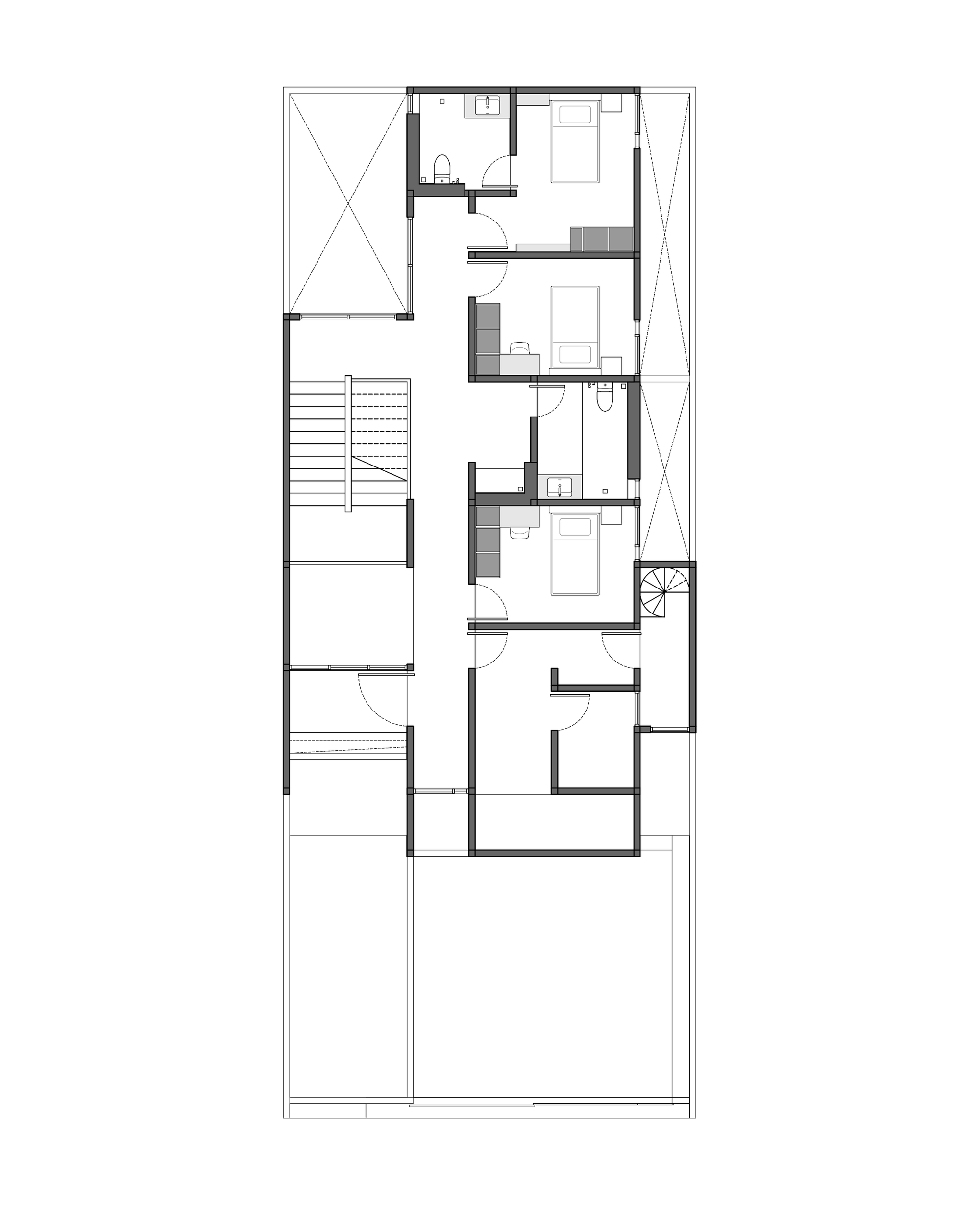
Dari sisi jalan, fasad rumah menampilkan karakter yang tegas namun tenang. Volume lantai dua berbentuk kotak putih tampil solid dan melayang di atas lantai dasar yang lebih tertutup. Efek kantilever menciptakan kesan ringan sekaligus protektif, menghadirkan bayangan alami pada area di bawahnya. Komposisi ini memberikan identitas arsitektural yang kuat tanpa harus berlebihan.

Jelajahi Karya Kami

Hidden-Hill House

Punten Coffee Shop

The Box Interspace