Fourlab

Merayakan kejujuran material ekspos serta keteraturan geometris yang presisi

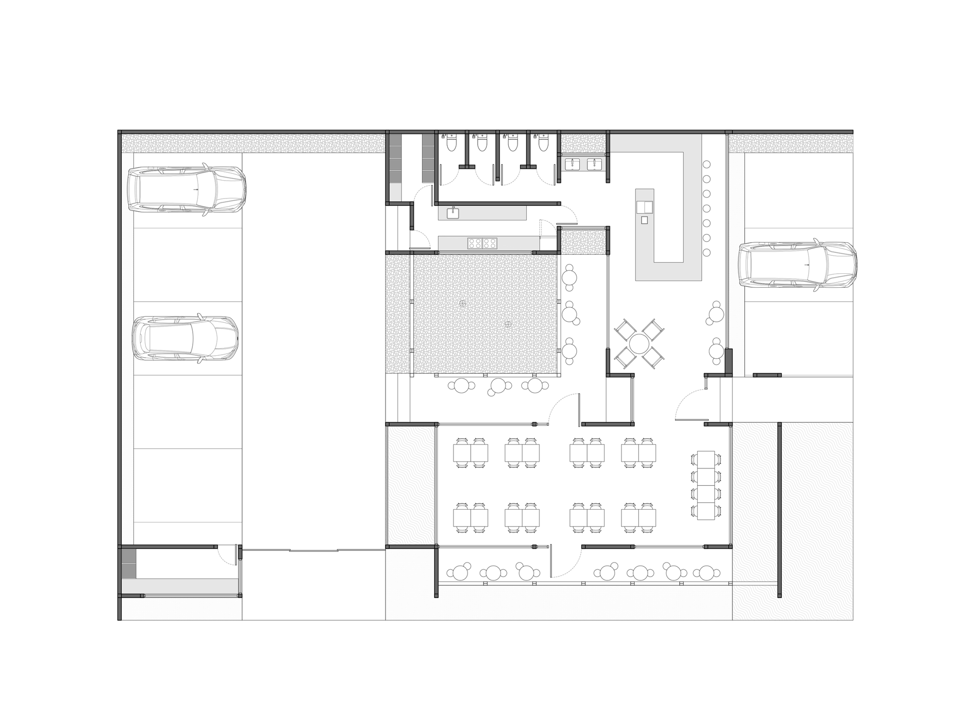
Fourlab dirancang sebagai sebuah ruang kopi kontemporer yang tumbuh dari pertemuan antara kesederhanaan bentuk, kejujuran material, dan kehangatan suasana tropis urban. Terletak di sudut persimpangan jalan, bangunan ini memanfaatkan posisi hook sebagai peluang untuk menghadirkan dua wajah arsitektur yang sama kuatnya, terbuka namun tetap terkontrol. Massa bangunan yang rendah dan horizontal memberi kesan membumi, seolah menyatu dengan ritme kota di sekitarnya tanpa kehilangan identitasnya.

Fasad utama dibentuk oleh komposisi bidang geometris yang tegas. Dinding putih polos tampil sebagai elemen penanda, mem frame logo dan nama Fourlab secara sederhana namun kuat. Di belakangnya, lapisan kedua berupa kaca lebar berbingkai hitam menghadirkan transparansi yang memperlihatkan aktivitas di dalam. Perpaduan ini menciptakan dialog antara solid dan void, antara privasi dan keterbukaan.

Jelajahi Karya Kami

Lokali Diner Cafe

House by The Garden

Hidden-Hill House